BSB + Partner
bsb opr eppenberg woeschnau 01

Ortsplanungsrevision, Eppenberg-Wöschnau


Die Gemeinde Eppenberg-Wöschnau hat mit ihrer revidierten Ortsplanung die Weichen für die räumliche Entwicklung der nächsten 15 Jahre gestellt. BSB + Partner hat die Gemeinde in diesem vorgängigen Prozess begleitet.

Kenndaten

Auftraggeber

Einwohnergemeinde Eppenberg-Wöschnau

Zeitraum

2019 bis 2022

Gemeinde

Eppenberg-Wöschnau


Planergemeinschaft (mit)

werk1 architekten und planer ag


Summe

CHF 93'000.-


SIA-Phasen

-


Beschrieb

Im Rahmen der Ortsplanungsrevision galt es für die Gemeinde Eppenberg-Wöschnau, eine kleine Gemeinde mit knapp 340 Einwohnenden im Osten des Kantons Solothurn, neben den eigenen Bedürfnissen und Entwicklungszielen auch die neuen übergeordneten eidgenössischen und kantonalen Bestimmungen zu berücksichtigen. Dies umfasste unter anderem das revidierte Raumplanungsgesetz und die interkantonale Vereinbarung über die Harmonisierung der Baubegriffe IVHB sowie den kantonalen Richtplan. Zudem musste die Ortsplanung mit Drittprojekten wie z.B. der Aufwertung und Gestaltung der Ortsdurchfahrt Wöschnau und dem Vierspurausbau der Bahnlinie zwischen Olten und Aarau koordiniert werden.

Trotz dieser herausfordernden Ausgangslage, den gestiegenen inhaltlichen Anforderungen an eine Ortsplanungsrevision und den beschränkten Ressourcen einer kleinen Gemeinde wie Eppenberg-Wöschnau konnte mit der Ortsplanung ein effektiver Mehrwert für die Gemeinde erzielt werden. Durch die Nutzung verschiedener, idealer Konstellationen zur richtigen Zeit konnten einige Nutzungs- und Planänderungen (Ein- und Auszonungen, Umzonungen, Bereitstellung einer Park+Ride-Anlage, qualitätssicherndes Verfahren zur guten Eingliederung von Neubauten ins Ortsbild, Aufwertungen von Grün- und Freiräumen) umgesetzt werden. Diese Massnahmen schaffen optimale Rahmenbedingungen für die zukünftige Entwicklung der Gemeinde im Einklang mit den Zielen des kommunalen Leitbilds.

Im Dezember 2022 wurde die revidierte Ortsplanung vom Regierungsrat genehmigt.


Aufgaben BSB+

  • Projektleitung
  • Prozess und Verfahrensbegleitung
  • Öffentlichkeitsarbeit

Impressionen

bsb opr eppenberg woeschnau 01
1 /
Eppenberg aus der Ferne
bsb opr eppenberg woeschnau 02
2 /
Ortsstruktur von Eppenberg
bsb opr eppenberg woeschnau 03
3 /
Ortsteil Wöschnau
bsb opr eppenberg woeschnau 04
4 /
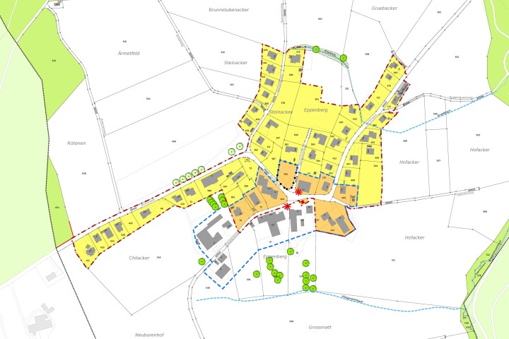
Bauzonenplan Ortsteil Eppenberg
bsb opr eppenberg woeschnau 05
5 /
Bauzonenplan Ortsteil Wöschnau


Startseite Projekte Ortsplanungsrevision, Eppenberg-Wöschnau