BSB + Partner
bsb gestaltungsplan konradstrasse olten 01

Gestaltungsplan Konradstrasse, Olten


Die beiden aus dem Jahr 1898 stammenden Häuser an der Konradstrasse 25 / 27 in Olten sollen durch einen Neubau ersetzt werden, der einige Besonderheiten aufweist. BSB + Partner durfte in enger Zusammenarbeit mit Behörden und Architekten den Gestaltungsplan ausarbeiten.

Kenndaten

Auftraggeber

Private Bauherrschaft

Zeitraum

2022 bis 2024

Gemeinde

Stadt Olten


Planergemeinschaft (mit)

-


Summe

CHF 30'000.-


SIA-Phasen

-


Beschrieb

Die beiden Liegenschaften Konradstrasse 25 und 27, nordwestlich der Oltner Altstadt, bilden mit den benachbarten Gebäuden eine Blockrandbebauung. Die beiden Gebäude befinden sich baulich in einem wenig überzeugenden Zustand und sind stark unternutzt. Aus diesen Gründen möchte die Eigentümerschaft die Gebäude mit einem Neubau ersetzen.
Das Projekt von Frey Architekten/rba architekten sieht ein Gebäude vor, das sich an den Nachbargebäuden orientiert und zeitgemässes Wohnen im innerstädtischen Gebiet ermöglicht. Das Erdgeschoss dient weiterhin der Belebung der Innenstadt durch Laden- bzw. Dienstleistungsnutzungen.
Das Projekt weist aufgrund der Situierung im Blockrand und der Grundstücksfläche von lediglich 254 m2 einige Besonderheiten auf, die es im von BSB + Partner erarbeiteten Gestaltungsplan zu sichern galt. Beispielsweise weist das Projekt keine den einschlägigen Richtlinien entsprechenden Autoabstellplätze auf. In Ausrichtung auf die urbane Bewohnerschaft galt es, ihre Mobilitätsansprüche im Gestaltungsplan mit anderen Verkehrsmitteln und -formen zu sichern. Weiter kann aus Platzgründen auf der Grundstücksfläche kein Aussenraum als Aufenthaltsort angeboten werden. Auch hier war eine Lösungsfindung möglich.
Der im Jahr 2024 ohne Einsprache vom Regierungsrat genehmigte Gestaltungsplan verdeutlicht, dass die einschlägigen Gesetze, Richtlinien und Normen solche nicht alltäglichen Projekte zulassen. Essenzielle Voraussetzung ist jedoch das Erkennen und Ausloten des möglichen Spielraums. Im Sinne von «besondere räumliche Ausgangslagen bedürfen besondere Lösungen» und einer guten Zusammenarbeit zwischen Behörden, Architekt/-innen, Raumplaner/-innen und Eigentümerschaft.

bsb gestaltungsplan konradstrasse olten 01
Situation Konradstrasse heute
bsb gestaltungsplan konradstrasse olten 02
Strassenfassade der bestehenden Liegenschaft
bsb gestaltungsplan konradstrasse olten 03
Fassade Innenhof
bsb gestaltungsplan konradstrasse olten 05
Dachgestaltung bestehend
/

Aufgaben BSB+

  • Erarbeitung Gestaltungsplan mit Sonderbauvorschriften
  • Erarbeitung Raumplanungsbericht
  • Strategisches Gestaltungskonzept Innenhof Konradstrasse
  • Projekt- und Verfahrensbegleitung

Impressionen

bsb gestaltungsplan konradstrasse olten 06
1 /
Gestaltungsplan Konradstrasse, BSB + Partner
bsb gestaltungsplan konradstrasse olten 07
2 /
Situationsplan, © ARGE Frey Architekten/rba architekten
bsb gestaltungsplan konradstrasse olten 08
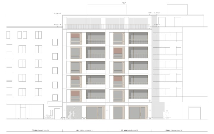
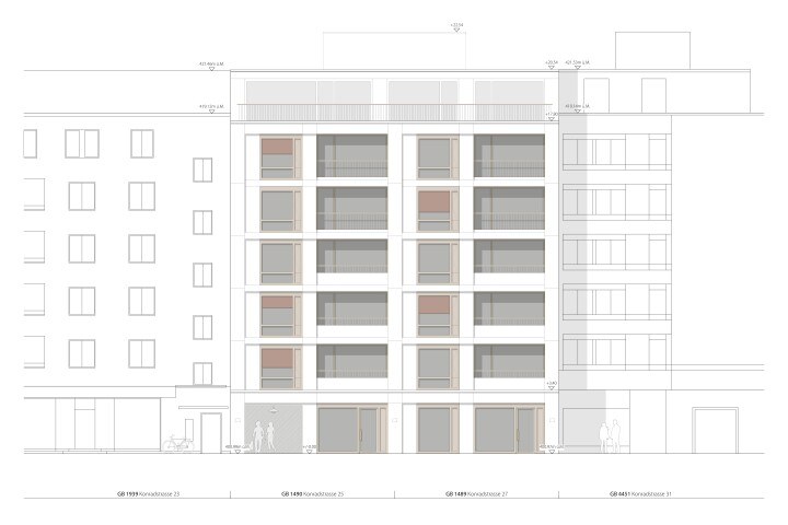
3 /
Richtprojekt Fassade, © ARGE Frey Architekten/rba architekten
bsb gestaltungsplan konradstrasse olten 09
4 /
Richtprojekt Schnitt, © ARGE Frey Architekten/rba architekten


Startseite Projekte Gestaltungsplan Konradstrasse, Olten